Ufficio - SAN LAZZARO DI SAVENA
 Richiedi informazioni

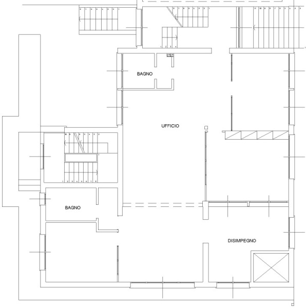
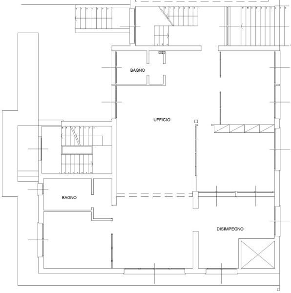
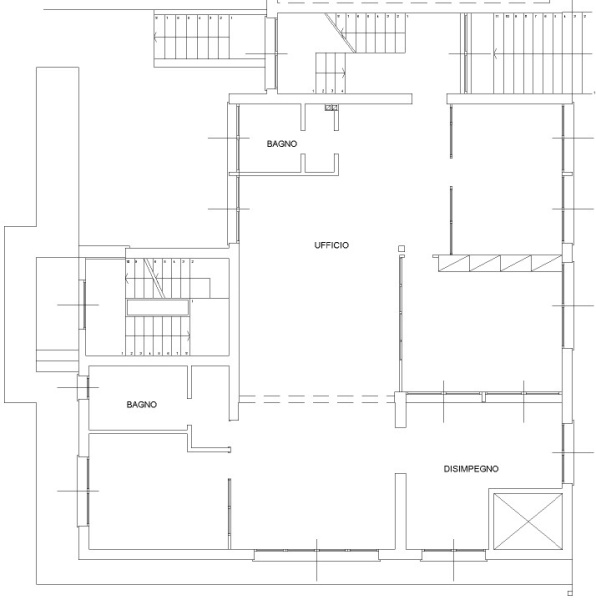
Vendesi luminoso ufficio di circa mq. 170 ubicato al piano rialzato di palazzina di n. 2 piani. L'immobile si trova all'interno della zona "artigianale La Cicogna ", collegato alla via Emilia mediante servizi di navetta, risulta ben visibile dalla via della Tecnica .Esposto a sud est, ogni stanza è dotata di finestre , bagni compresi. I n.2 servizi igienici sono già pertanto distinti per sesso e le generose dimensioni permettono l'adattabilità per disabili. La disposizione interna degli uffici è costituita da pannelli in cartongesso e pareti amovibili in pvc che rendono possibile ogni nuova distribuzione degli ambienti senza demolizioni. Attualmente accessibile dall'area cortiliva e dalle scale fronte est della palazzina. Possibilità di ripristinare l'ascensore interno all'ufficio per lo sbarco esterno al piano terra. Ambienti climatizzati. Prezzo trattabile

Dettagli:
  •  Riferimento ProvBO/40
  •   Contratto: vendita
  •   Tipologia: ufficio
  •   Prezzo: € 230,000
  •  Superficie: 170 m²
  •  Posto auto: NO
  •   Classe energetica: 
     C
  •  I.P.E. n.d.